Büro mit Aussagekraft
Lust auf Veränderung. Seit 25 Jahren ist die Kommunikationsagentur von Claudia Neumann und Georg Maurer eine der wichtigsten Drehscheiben für Journalisten im deutschsprachigen Raum. Zum Jubiläum beschlossen die beiden, den Räumlichkeiten in der Kölner Innenstadt neue Frische angedeihen zu lassen. Und zwar auf eine ganz raffinierte Art und Weise.
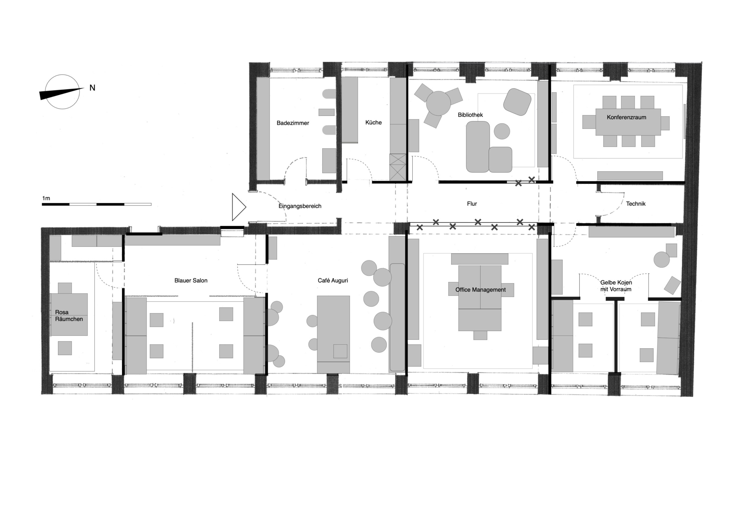
An Ideen hat es nie gemangelt, doch war es jetzt der richtige Zeitpunkt, um diese auch in die Tat umzusetzen. Seit 2006 hat Neumann Communication den Sitz in einem klassischen Nachkriegs-Kontorhaus am Kölner Eigelstein – ein Ort, an dem das Herz von Claudia Neumann und Georg Maurer, Inhaber- und Geschäftsführungsduo der Agentur, hängt, denn man pflegt hier beste nachbarschaftliche Beziehungen und den Kontakt zu befreundeten Kreativen. So galt es, die rund 230 Quadratmeter neu zu definieren, denn sie entsprachen weder dem Designanspruch noch der modernen Arbeitsweise der Agentur. „Flexibilität in Sachen Büroanwesenheit versus Remote Work ist heute selbstverständlich und gab den Ausschlag, den Anspruch an unsere Arbeitsumgebung von Grund auf neu zu denken“, blickt Claudia Neumann zurück. Gemeinsam mit ihrem Team begannen sie und ihr Mann in sich hineinzuhören, um dann entschlossen in ein neues Kapitel der Agentur-Geschichte aufzubrechen.

© Constantin_Meyer, Köln
Ein Büro wie ein Maßanzug
Zu Beginn wurden wichtige Punkte geklärt, vor allem Fragen wie „Wie wollen wir zukünftig arbeiten?“ oder „Wie sollen unsere neuen Büroräume gestaltet werden, damit sie New Work im Sinne unserer Agentur möglich machen?“. Schon vor der Planungsphase wurde das Team durch einen Workshop von Coach Ina Baum unterstützt, die die Wunschliste noch mit wichtigen Impulsen abrundete. Räume für kommunikativen Austausch in Form von Meetings, gemeinsamen Mittagspausen oder auch After-Work-Drinks wurden genauso gefordert wie Rückzugsorte für ruhiges und konzentriertes Arbeiten. Mehr Ordnung und Struktur an den eigentlichen, nicht mehr einzelnen Personen zugewiesenen, sondern flexibel buchbaren Arbeitsplätzen war gewünscht, dabei insgesamt ein wohnliches, freundliches, farbenfrohes Interieur.

© Constantin_Meyer, Köln
Und nicht zuletzt war da der Wunsch nach einer Einrichtung, die die besondere Wertschätzung für herausragende Möbel- und Produktgestaltung einer Kommunikationsagentur widerspiegelt, die seit mehr als zwei Jahrzehnten in der Welt des Designs zuhause ist. Um all das und noch mehr zu verwirklichen, wurde die Kölner Innenarchitektin Anke Landsberg in Boot geholt. Die Voraussetzungen für eine Umsetzung nah an den Vorstellungen waren jedenfalls gut: Als typischer Nachkriegsbau konnte der vorhandene Grundriss durch Entfernen und Neuerrichtung von Zwischenwänden leicht adaptiert werden, und so übersetzte Anke Landsberg Ideen des Teams in ein Raumkonzept, das offene, gemeinschaftlich genutzte und repräsentativ gestaltete Bereiche mit kleinen Kojen zum fokussierten, konzentrierten Arbeiten miteinander vereint.

© Constantin_Meyer, Köln
Viel, viel Farbe
Schon beim Betreten der frisch herausgeputzten Räume wird man von intensiven Farben in Empfang genommen. Und das hat einen Grund. „Die typische Anordnung der Räume in einem Kölner Nachkriegsbau beschert unserem Office einen engen Eingangsbereich ohne Tageslichteinfall. Die Idee war, diesen monochrom zu gestalten und einen Impuls zu setzen, wenn man eintritt: An diesem Ort ist Energie! Wir haben dafür den Farbton „Strawberry & Cream“ von Caparol Icons ausgesucht. Mit dem warmen Gelbton „Flower Power“, ebenfalls von Caparol Icons, geht es an der Decke des langen Flurs weiter, so dass Eingangsbereich und Flur insgesamt einen einladenden, hellen und freundlichen Eindruck vermitteln“, erzählen die beiden Agenturchefs. Neben dem so genannten „Café Auguri“, wo sich das Team zum gemeinsamen Lunch trifft oder Workshops und Kundenbesuche bei Kaffee stattfinden, sind es auch die anderen Räume, in denen die einheitliche Akzentfarbe Schwarz für Leuchten, Büroaccessoires und Sitzmöbel ins Auge sticht.

© Constantin_Meyer, Köln
Dem gegenüber steht die in unterschiedlichen Farbtönen gewählte Raumgestaltung wie etwa die sonnige, als Meeting- wie als Rückzugsraum nutzbare Bibliothek mit Blick in den idyllischen Hinterhof, der „Blaue Salon“, dessen Name sich von den Stoffbahnen der Kollektion Hallingdal in sattem Blau von Kvadrat ableitet, sowie zwei „gelbe Kojen“ und ein „rosa Raum“, allesamt situiert in den ruhigeren Randzonen des Büros. Sämtliche Stoffe von Kvadrat, die auf diese Art recycelt wurden und perfekt zum Farbkonzept der verschiedenen Räume passen, fungieren hier in Form von Vorhängen und Wandpaneelen nicht nur als wohnlich-weiche, textile Farbtupfer, sondern beeinflussen auch die Raumakustik positiv. „Als PR-Agentur von Kvadrat erhalten wir immer wieder Muster der neuen Kollektionen – diese wurden hier zu gepolsterten Akustikpaneelen in blauen und gelben Farbtönen umgenutzt. Sämtliche Tischplatten stammen von Really und sind aus recycelten Textilresten von Kvadrat hergestellt.“ Ihre Namen verdanken die Räume übrigens dem abgestimmten Farbkonzept von Innenarchitektin Anke Landsberg.

© Constantin_Meyer, Köln
Das Beste zum Vorschein bringen
Die große Auswahl an unterschiedlich gestalteten und dabei wohnlichen Räumen hat dem Agenturleben neuen Schwung gegeben. „Es macht richtig Freude zu sehen, wie sich die Dynamik, die sich aus dem neuen Raumkonzept ergibt, auf die Qualität des Miteinanders und damit unserer Arbeit auswirkt,“ stellen Claudia Neumann und Georg Maurer unisono fest. „Das Büro spricht uns aus der Seele als ein Ort, an dem wir nicht nur als Team Kommunikation im besten Sinne erleben, sondern auch für unsere Kunden entstehen lassen können.“

© Constantin_Meyer, Köln











